logo

500吨锚杆托盘生产线_500t锚杆托盘液压机

作者:山东冰球突破重工   发表时间:2025-09-26

锚杆托盘生产线是专门用于生产制造矿用锚杆(锚索)托盘的一种自动化流水线。根据锚杆托盘的规格尺寸不同,选用不同的锚杆托盘生产线。其中,500吨锚杆托盘生产线(500吨四柱液压机)采购率较高,用于冲压300x300x14mm以内的锚杆托盘,整套生产线设备包括500吨锚杆托盘液压机、锚杆托盘模具、送料机、机械手及他辅助设备组成。

500吨锚杆托盘生产线现场

500吨锚杆托盘生产线是集自动推料、拉伸、冲裁、出料为一体的冲压加工设备,可实现从钢板到成品的一次成型工艺,提高生产效率的同时,节省人力成本;可完全实现自动化。自动化程度高,噪音低,效率高,可一分钟出4-6块锚杆托盘。

500吨锚杆托盘液压机

500吨锚杆托盘生产线采用 PLC 可编程控制器及触摸屏控制,伺服驱动导向送料、送料长短可调,减少人员操作。PLC 自动化控制,人机交互界面,可手动和自动控制生产线各部件的动作协调。

1、主机(500吨四柱液压机): PLC触摸屏数控系统控制生产,伺服驱动导向送料、送料长短可调,减少人员操作。

2、控制系统:自动化经送料冲裁生产设备PLC自动化控制生产速度可调,人机交互界面可手动和自动控制生产线各部件的动作协调。

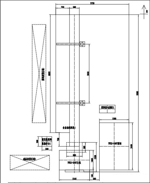
500吨锚杆托盘生产线安装布局图:

500吨锚杆托盘生产线安装布局图

锚杆托盘生产线的工作过程:

1、送料:

由自动送料机将钢板抓取传送到500吨锚杆托盘液压机工作台面的模具上,等待拉伸冲孔;

2、拉伸冲孔冲裁:

利用模具将钢板一次拉伸冲裁冲剪工艺,得到锚杆托盘成品;500吨锚杆托盘液压机的具体的工作流程:滑块快速下行—慢速加压—保压延时—滑块快速返回—原位停止等,完成锚杆托盘的一个冲压生产工艺流程。

3、出料:

成品锚杆托盘由辅助设备推料机推送到传送带;

4、如果需要,也可配机械手,可直接将压制好的锚杆托盘进行码垛。

冰球突破重工四柱液压机以其结构稳定、精度高、高效多功能、安全可靠且维护方便等特点,更适合工业大批量生产。技术创新和高效生产能够满足不同行业的生产需求,提高生产效率和产品质量,同时还能够节约能源和保护环境。可根据客户的要求、产品的要求而定,请致电18963222388。